Home Search

Leave a Message

Thank you for your message. I will be in touch with you shortly.

Explore My Properties

Property Description

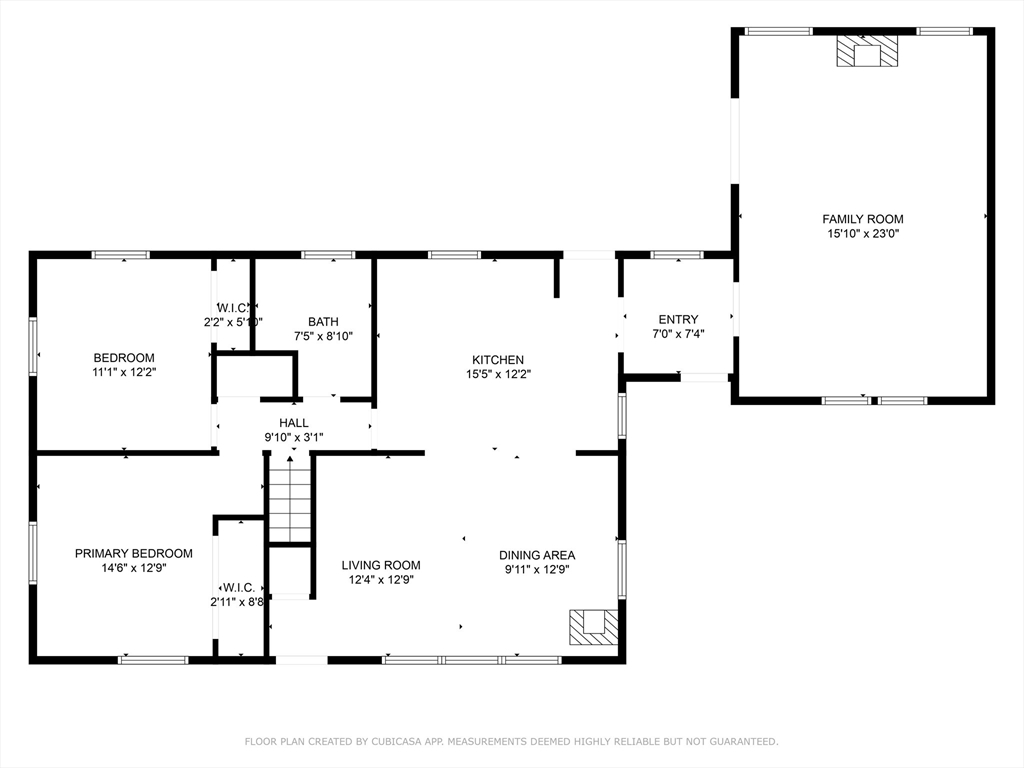
Offers are due Monday, 9/29, by 4:00 p.m.You'll be amazed by the floor plan at 20 Kendrick Ave. This home makes the most of every square foot, with a layout that feels open, comfortable, and inviting. The living area flows easily into the dining and kitchen spaces, creating the kind of connection buyers are looking for today. Natural light brightens each room, adding to the sense of space. Step outside to a private fenced yard, perfect for relaxing or entertaining. Located in Worcester's Burncoat neighborhood, close to schools, shopping, and major routes, this home blends convenience with charm.

Overview

Property Status
Sold
Lot Size
0.29 Acres
MLS ID
73434099
Property Type
Residential
Year Built
1955

Features & Amenities

Total Area
1,360 Sq.Ft.
Architecture Styles
Ranch
Water Source
Public
Roof
Shingle
Lot Features
Corner Lot, Wooded
Parking
Paved Drive, Off Street, Paved
Heat Type
Natural Gas, Propane
Air Conditioning
Heat Pump
Sewer
Public Sewer
Substructure
Block
Other Exterior Features
Deck
High School
Worcester School District
Sales Price
$430,000
Real Estate Tax
$5,355/yr
Zoning
RG-5

Downloads

20 Kendrick Ave, Worcester

Schedule a Tour

I would love to help you see this beautiful home! As a full-service brokerage, we can help you tour. Please submit an offer, and answer questions about the buying process.

Enter a valid email

Thank you

for your interest in 20 Kendrick Ave, Worcester, Worcester, MA 01606

back to page

I'm Interested In

20 Kendrick Ave, Worcester

or
  • CallMarilyn Freedman

    License #136297

    (781) 367-0847
  • 20 Kendrick Ave, Worcester
    Navigate

    Find a Home That Feels Right

    View Listings

    • 55 Widow Rites Lane For Sale

      $2,499,000

      55 Widow Rites Lane, Sudbury, MA 01776

      • 5 Beds
      • 5 Baths
      • 5,700 Sq.Ft.
    • 45 Widow Rites Lane For Sale

      $2,459,000

      45 Widow Rites Lane, Sudbury, MA 01776

      • 4 Beds
      • 5 Baths
      • 3,816 Sq.Ft.
    • 87 Whitewood Avenue Pending

      $1,319,000

      87 Whitewood Road, Westwood, Westwood, MA 02090

      • 5 Beds
      • 3 Baths
      • 2,952 Sq.Ft.
    • 22 Azalea Circle Pending

      $200,000

      22 Azalea Circle, Dedham, MA 02026

    • 277 Read Street # 2 For Lease

      $2,400/mo

      277 Read Street # 2, Attleboro, MA 02703

      • 2 Beds
      • 1 Bath
      • 950 Sq.Ft.
    View All

    Follow Us On Instagram